Паровой котел на мазуте 1200 кг (1.2 т пара) - 170°С -0,9 МПа / 9 кгс/cм² в Карши

Котел паровой 1.2 тонны 170 С на мазуте и отработанном масле
Паровой котел 1.2 т 170 С на мазуте и отработанном масле
Чертеж мазутного парового котла 1.2 т 170 С
Мазутный паровой котел 1.2 тонны 170 С чертеж
Паровой мазутный котел 1.2 тонны в час с температурой 170 С
Мазутный паровой котел 1.2 т в час с температурой 170 С
Мазутный паровой котел 1.2 т в час температура пара 170 С изготовление
Изготовление мазутного парового котла 1.2 тонны в час температура пара 170 С
Мазутный паровой котел 1.2 т 170 С производство
Производство мазутных паровых котлов 1.2 т 170 С
Котел паровой 1.2 тонны 170 С на мазуте и отработанном масле промышленный
Промышленный паровой котел 1.2 т 170 С на мазуте и отработанном масле
Схема парового котла 1.2 тонны 170 С на мазуте и отработанном масле
Паровой котел 1.2 тонны 170 С на мазуте схема
Котел паровой 1.2 тонны 170 С на мазуте и отработанном масле
Чертеж мазутного парового котла 1.2 т 170 С
Паровой мазутный котел 1.2 тонны в час с температурой 170 С
Мазутный паровой котел 1.2 т в час температура пара 170 С изготовление
Мазутный паровой котел 1.2 т 170 С производство
Котел паровой 1.2 тонны 170 С на мазуте и отработанном масле промышленный
Схема парового котла 1.2 тонны 170 С на мазуте и отработанном масле
Цена
13 013 273 ₸
От 13 013 273 ₸ с доставкой до г.
Логотип WhatsApp Связаться
по WhatsApp
  • Непрерывная выработка сухого пара независимо от нагрузки котла
  • Отсутствие температурных расширений обеспечивает надежность конструкции
  • Подпитка котла производится даже холодной водой +5 ºС
  • Удобная очистка поверхностей нагрева без остановки котла

Технические характеристики

МаркаSTEAMEXPERT
ВидПаровой котел Е
Вид топкиМазутная горелка
Конструкция котлаЖаротрубный
Производительность1200 кг/ч
Производительность1.2 т/ч
Максимальная тепловая мощность0.9 МВт
Диапазон регулирования мощности40-100 %
ТопливоМазут, Жидкое
Низшая теплота сгорания проектного топлива9260 кКал/кг
КПД котла на МАЗУТЕ, не менее90 %
Расход топлива99 нм³/ч
Расход условного топлива131 кг/ч
Температура пара, не более170 °С
Давление пара, не более0.9 МПа
Давление пара, не более9 (кгс/см²)
Давление пара, не более9 бар
Полный объем котла4.27 м³
Объем паровой части0.39 м³
Аэродинамическое сопротивление38 (3.8) Па (мм. вод. ст.)
ТягаПринудительная
Объем топочной камеры2.13 м³
Размер топочной камеры, диаметр*глубина1195х1900 мм
Присоединительные размеры выхода пара150 Ду
Присоединительные размеры по водяному тракту32 Ду
Присоединительные размеры по дымовым газам / диаметр дымовой трубы450 мм
Габаритные размеры котла, длина*ширина*высота4400х2050х2100 мм
Масса5750 кг
ЭнергоэффективностьВысокая
БрендSTEAMEXPERT

Паровой котел на мазуте STEAMEXPERT Е 1.2 0.9 170 ТЖ в Карши

Промышленный паровой котел на мазуте Е 1.2 Карши предназначен для производства пара температурой до 170 °С и давлением 0.9 МПа на технологические нужды для вашего производства. Парогенератором пользуются бетонные заводы при производстве ЖБИ изделий, химические предприятия, строительные организации, воинские части, больницы, бани, предприятия нефтегазовой, кожевенной, пищевой.

Наши паровые мазутные котлы STEAMEXPERT Е 1,2 0,9 имеют следующие преимущества

  • Большая поверхность испарения препятствует выносу капель воды и увеличивает скорость испарения
  • Дополнительное разделение пара от воды в паросборной камере. Повышается качество пара путем улавливания капелек воды из пара 
  • Большая паровая камера обеспечивает непрерывную подачу пара при любой нагрузке и сокращает время выхода на заявленную производительность
  • Эффективная конвективная часть котла способствует высокой скорости нагрева воды
  • Отсутствие тепловых расширений благодаря комбинированной компановке
  • Большой водяной объем котла 1,2 т позволяет производить подпитку холодной водой +5° без температурных колебаний
  • Чистка конвективного пакета паром без остановки котла. На задней стенке агрегата находятся лючки для обдувки. Обдувка производится аппаратом для обдувки при минимальной нагрузке и максимальном давлении

Жаротрубный паровой котел пар 1200 кг высокого давления можно перевести в водогрейный режим изменив схему подключения.

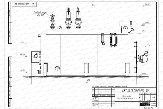
Устройство парового котла 1200 кг в час на мазуте

Промышленный стальной паровой котел КП 1200 на мазуте и отработке изготавливается в горизонтальном исполнении и состоит из двух цилиндров, паросборника, конвективной части. Цилиндры размещаются один в другом и соединяются фланцами. Внутренний цилиндр – это топочная часть генератора. Межцилиндрическое пространство заполняется водой, сверху приваривается паросборник, на который крепятся 2 предохранительных клапана.

К фронтовой плите крепится горелка для подачи топлива в топку жаротрубного котла. Мазутный паровой котел 1200 кг работает с длиннофакельными горелками ILKA. В качестве топлива может применяться мазут и отработанные масла. Продукты сгорания выводятся чрез дымовую трубу. В основании дымовой трубы установлен предохранительный клапан.

Вода в цилиндрический котел steam 1200 подается насосом. На паровой промышленный котел желательно устанавливать рабочий и резервный насосы. Дренажи и воздушники производят дренирование трубной системы от шлама и удаление скапливающего воздуха.

Безопасность установки обеспечивают клапаны. При повышении давления выше допустимого, срабатывают клапаны осуществляя автоматический выпуск пара.

Автоматика парового котла предусмотрена для управления и защиты. В случае отклонения от заданных параметров происходит световой и звуковой сигнал.

Паровой котел Е 1.2 0.9 170 ТЖ на мазуте принцип работы

Мазут сгорает в топочной части парового котла Е 1 2 0 9, окруженной водяной охлаждаемой рубашкой. Продукты горения проходят через трубный пучок и выходят в верхней части генератора.

Трубный пучок находится за камерой горения. Трубки заполнены водой и омываются горячими газами, за счет чего происходит теплообмен. Пар образуется при испарении нагреваемой воды и собирается в верхней части котлоагрегата, над которой выполнена паросборная камера, далее через паропровод направляется потребителю на технологические нужды.

Монтаж и подключение

Горизонтальный паровой котел 1200 кг в час на мазуте и отработанном масле для производства пара поставляется блоками максимальной заводской готовности. Агрегат устанавливается в котельной на специально подготовленную ровную поверхность. Подсоединяется по воде, устанавливается запорная арматура на подводящем трубопроводе и отводящем паропроводе, предохранительные клапаны и контрольно-измерительные приборы. Подсоединяется вентилятор и автоматика.

Купить мазутный паровой котел Е 1.2-0.9-170 ТЖ

Для того чтобы купить паровой котел 1200 кг пара в час на мазуте в Карши, вы можете сделать заявку по телефону +7-7172-69-59-73, либо оформить заявку онлайн. Менеджеры дадут консультацию по подбору вспомогательного оборудования для выбранных вами моделей и рассчитают стоимость доставки. Транспортирование котлоагрегата и вспомогательного оборудования до объекта осуществляется автомобильным транспортом.

Комплект поставки

Предохранительный клапан 17с28нж Ду 50
Клапан предохранительный 17с28нж Ду 50
2 штуки
Шаровый кран
Кран шаровый
1 штука
Вентиль Ду 15
Вентиль Ду 15
1 штука
Вентиль Ду 20
Вентиль Ду 20
1 штука
Вентиль Ду 25
Вентиль Ду 25
2 штуки
Вентиль Ду 32
Вентиль Ду 32
1 штука
Указатель уровня
Указатель уровня
2 штуки
Устройство запорное Ду 20
Запорное устройство Ду 20
2 штуки
Вентиль чугунный фланцевый 15кч16п1
Вентиль 15кч16п1
1 штука
Клапан обратный
Клапан обратный
1 штука
Кран трехходовой ДУ 15
Кран Ду 15
3 штуки
Манометр ДМ2005 Сг 10.0 кгс см2
Манометр ДМ2005Сг 10,0 кгс/см2
1 штука
Манометр МП 160
Манометр МП 160
1 штука

Дополнительно потребуется

Горелка СибСтронг мазутная
Цена по запросу
Дымовые трубы
Цена по запросу
CDM насос
Насос CDM 3-18 (2.2 кВт)
Цена 895 581 тг.
Газоход котла
Цена по запросу

Похожая продукция

Котел паровой 1.0 тонны 170 С на мазуте и отработанном масле
Паровой котел на мазуте 1000 кг (1.0 т пара) - 170°С -0,9 МПа / 9 кгс/cм²
Производительность, кг/ч1000
ТопливоМазут, Жидкое
Температура пара, не более, °С170
Давление пара, не более, МПа0.9
Цена 12 439 284 тг.
Котел паровой 1.5 тонны 170 С на мазуте и отработанном масле
Паровой котел на мазуте 1500 кг (1.5 т пара) - 170°С -0,9 МПа / 9 кгс/cм²
Производительность, кг/ч1500
ТопливоМазут, Жидкое
Температура пара, не более, °С170
Давление пара, не более, МПа0.9
Цена 14 529 632 тг.
Котел паровой 1.2 тонны 170 С на дизеле
Дизельный паровой котел 1200 кг (1.2 т пара) - 170°С -0,9 МПа / 9 кгс/cм²
Производительность, кг/ч1200
ТопливоЖидкое, Дизель
Температура пара, не более, °С170
Давление пара, не более, МПа0.9
Цена 9 709 903 тг.
Котел паровой 1.2 тонны 170 С на газе
Газовый паровой котел 1200 кг (1.2 т пара) - 170°С -0,9 МПа / 9 кгс/cм²
Производительность, кг/ч1200
ТопливоГаз
Температура пара, не более, °С170
Давление пара, не более, МПа0.9
Цена 9 709 903 тг.
Котел паровой 1200 кг 115 С на мазуте и отработанном масле
Паровой котел на мазуте 1200 кг (1.2 т пара) - 115°С -0,07 МПа / 0,7 кгс/cм²
Производительность, кг/ч1200
ТопливоМазут, Жидкое
Температура пара, не более, °С115
Давление пара, не более, МПа0.07
Цена 10 922 925 тг.
Котел паровой 1200 кг 130 С на мазуте и отработанном масле
Паровой котел на мазуте 1200 кг (1.2 т пара) - 130°С -0,17 МПа / 1,7 кгс/cм²
Производительность, кг/ч1200
ТопливоМазут, Жидкое
Температура пара, не более, °С130
Давление пара, не более, МПа0.17
Цена 12 636 325 тг.

Сертификаты товара

Сертификат на котлы отопительные паровые КП
Сертификат на котлы отопительные паровые КП

Опросные листы

Все опросные листы
Опросный лист на паровой котел
Заполнить опрос

Собственное производство

Котельный завод производит
  • Паровые котлы от 300 кг до 2.5 тонны пара в час
  • Промышленные водогрейные котлы от 150 КВт до 4 МВт на всех видах топлива
  • Механические топки ТШПМ, шурующая планка и ТЛПХ, ленточное полотно прямого хода
  • Циклоны для очистки воздуха и дымовых газов для производств и промышленных отраслей
  • Транспортеры и системы топливоподачи и шлакоудаления
Подробнее о производстве
Собственное производство
Смотреть видео
с производства